










SAJÁT FEJLESZTÉSŰ CSARNOKVÁZ ÉS RENDSZER
Szellemi Tulajdon Nemzeti Hivatala:
M1702426 ügyszámon nyilvántartva
A csarnokok gépészetét és villanyszerelését nem vállaljuk, de ajánlhatunk kivitelezőt!
KTI - AC - típusacélváz:
A KTI - AC típusvázat azzal a céllal fejlesztettük ki, hogy a megrendelőknek egy egyszerű de stabil csarnokvázat hozzunk létre. S350GD + horganyzás.
Elemek:
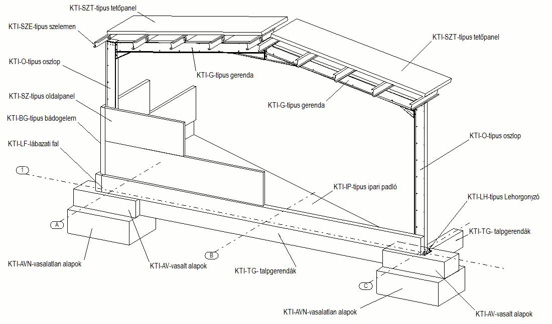
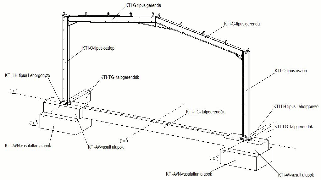
- KTI - LH - lehorgonyzó elem
- KTI - O - típusoszlop
- KTI - G - típusgerenda
- KTI - FO - típus falvázoszlop
- KTI - M - típusmerevítő rendszer
Acélváz+Gyártás+Szerelés
28.500Ft/m2-tól
KTI - SZCS - típus készültség:
Elemek:
- KTI - F - komplett földmunka
- KTI - AVN - típus vasalatlan alap
- KTI - AV - típus vasalt alap
- KTI- TG - típus talpgerenda
- KTI - LH - lehorgonyzó elem
- KTI - O - típusoszlop
- KTI - G - típusgerenda
- KTI - FO - típus falvázoszlop
- KTI - M - típusmerevítő rendszer
Földmunka+Alapozás+Acélváz+Gyártás+Szerelés 48.500Ft/m2-tól
KTI - FCS - típus készültség:
Elemek:
- KTI - F - komplett földmunka
- KTI - AVN - típus vasalatlan alap
- KTI - AV - típus vasalt alap
- KTI- TG - típus talpgerenda
- KTI - LH - lehorgonyzó elem
- KTI - O - típusoszlop
- KTI - G - típusgerenda
- KTI - FO - típus falvázoszlop
- KTI - M - típusmerevítő rendszer
- KTI - SZE - típusszelemen
- KTI - SZ - típus oldalpanel
- KTI - SZT - típus tetőpanel
- KTI - BG - típus bádogelemek
Acélváz+Gyártás+Szerelés
+Szelemen+Lábazat+Bádogozás+
8cm oldal és tetőpanel
92.000Ft/m2-tól
10cm oldal és tetőpanel
100.000Ft/m2-tól
12cm oldal és tetőpanel
110.000Ft/m2-tól
Ehhez jön még az alapozás 28.000FT/m2,
ipari padló 16.000-24.000FT/m2